Biuro Prezydenta ds. Kultury ogłasza konkurs na sezonowe punkty na działalność wystawienniczo-handlową dla plastyków na terenie Głównego i Starego Miasta w Gdańsku.
Aktualny wniosek do pobrania:
2026_WNIOSEK Plastycy (34.45 KB, docx)
2026_WNIOSEK Plastycy (127.67 KB, pdf)
Zapoznaj się z zasadami:
2026_REGULAMIN Plastycy (244.59 KB, pdf)
Wolne lokalizacje (u dołu strony mapy do pobrania):
- Długa nr 1, Długa nr 2, Długa nr 3, Długa nr 4, Długa nr 5, Długa nr 6, Długa nr 9, Długa nr 11, Długa nr 12; Długa nr 13;
- Długi Targ nr 22, Długi Targ nr 23, Długi Targ nr 24;
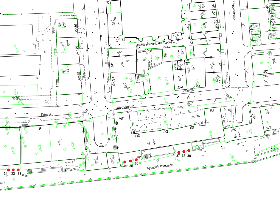
- Rybackie Pobrzeże nr 26, Rybackie Pobrzeże nr 27, Rybackie Pobrzeże nr 28, Rybackie Pobrzeże nr 31,Rybackie Pobrzeże nr 32, Rybackie Pobrzeże nr 33, Rybackie Pobrzeże nr 34, Rybackie Pobrzeże nr 35, Rybackie Pobrzeże nr 36, Rybackie Pobrzeże nr 37, Rybackie Pobrzeże nr 38, Rybackie Pobrzeże nr 39;
- Korzenna nr 40, Korzenna nr 41, Korzenna nr 42.
Nabór wniosków trwa do 20 marca 2026 roku.
WIĘCEJ INFORMACJI
Biuro Prezydenta ds. Kultury, tel. 58 323 61 79, e-mail: izabela.sikorska@gdansk.gda.pl
LOKALIZACJE:
MAPY DO POBRANIA:
01_Długa_m.1-2 (412.03 KB, pdf)
02_Długa_m._3-11 (402.85 KB, pdf)
03_Długa_m._12-13 (435.78 KB, pdf)
04_Długi_Targ_m.14-22 (439.97 KB, pdf)
05_Długi_Targ_m._23-24 (402.09 KB, pdf)
06_Rybackie_Pobrzeże_(Targ_Rybny)_m.25-30 (787.89 KB, pdf)
07_Rybackie_Pobrzeże_(Tokarska,_Warzywnicza)_m._31-39 (442.72 KB, pdf)
08_Korzenna_m._40-42 (508.94 KB, pdf)
Podstawa prawna:
Komisja Konkursowa:
BIP:
KLAUZULA INFORMACYJNA O PRZETWARZANIU DANYCH OSOBOWYCH:
RODO_Plastycy 2026 (41.12 KB, pdf)




















